INTRODUCTION FOR CLINIC PROJECT
INTRODUCTION
PROJECT: CLINIC
TYPE OF CLINIC:
GENERAL CLINIC
FOR WHOM:
ADULT AND CHILDREN
WHAT ARE THEY LIKE:
THEY ARE OPEN IN A COMMERCIAL SHOP NEAR THE RESDENTIAL AREA.THEY OFFEN TREAT THE PATIENT WHO ARE COMMON SICK SUCH AS FLU, FEVER AND MORE. THEY ALSO ACCEPT EMERGENCY PATIENT. THEY ALSO GIVE US A COMFORTABLE SEAT AND TELEVISION IN WAITING AREA. THEY ALSO PROVIDE A BIGGER DOOR IN EACH ROOM TO HAVE AN ENOUGH SPACE TO THE PATIENT OR PEOPLE WHO USE WHEELCHAIR.
THEY ARE OPEN IN A COMMERCIAL SHOP NEAR THE RESDENTIAL AREA.THEY OFFEN TREAT THE PATIENT WHO ARE COMMON SICK SUCH AS FLU, FEVER AND MORE. THEY ALSO ACCEPT EMERGENCY PATIENT. THEY ALSO GIVE US A COMFORTABLE SEAT AND TELEVISION IN WAITING AREA. THEY ALSO PROVIDE A BIGGER DOOR IN EACH ROOM TO HAVE AN ENOUGH SPACE TO THE PATIENT OR PEOPLE WHO USE WHEELCHAIR.
WHAT DO THEY NEED:
THEY NEED MORE SOFA OR CHAIR TO PROVIDE MORE COMFORTABLE. THEY ALSO NEED CABINET TO STORE MEDIENCE AND HIGH TECHNOLOGY FACILITIES TO PROVIDE BETTER SERVICES FOR PATIENT.
THEY NEED MORE SOFA OR CHAIR TO PROVIDE MORE COMFORTABLE. THEY ALSO NEED CABINET TO STORE MEDIENCE AND HIGH TECHNOLOGY FACILITIES TO PROVIDE BETTER SERVICES FOR PATIENT.
WHAT SERVICES/FACILITIES DO THEY NEED:
THEY NEED MORE HIGH TECHNOLOGY FACILITIES TO PROVIDE BETTER SERVICES TO THEIR PATIENT. THEY ALSO NEED MORE BUILD-IN CABINET TO STORE THEIR MEDIENCE. THEY ALSO NEED MORE PLANTS TO PROVIDE MORE FRESH AIR.THEY ALSO NEED MORE AREA OR ROOMS TO PROVIDE BETTER SERVICES WHEN THERE ARE MANY PATIENT WAITING.
THEY NEED MORE HIGH TECHNOLOGY FACILITIES TO PROVIDE BETTER SERVICES TO THEIR PATIENT. THEY ALSO NEED MORE BUILD-IN CABINET TO STORE THEIR MEDIENCE. THEY ALSO NEED MORE PLANTS TO PROVIDE MORE FRESH AIR.THEY ALSO NEED MORE AREA OR ROOMS TO PROVIDE BETTER SERVICES WHEN THERE ARE MANY PATIENT WAITING.
CASE STUDY: (i) LOCAL
(a)LOCATION: CLINIC DR.
SHIMA, NO. 10 LORONG PERMAI 1, JALAN HAJI SIRAT, 42100 KLANG, SELANGOR.
(b)PICTURE OF LOCATION:

(ii) INTERNATIONAL

American Sino Hospital Audong Clinic by Robarts Interiors and Architecture
INTERIOR ASPECTS:
( a)
COLOR: EARTHY
TONE, BLUE, PALE BLUE, PEACH AND WHITE.
(b) MATERIALS: LAMINATED FLOORING, TILES, PARTITION WALL,
GLASS DIVIDER, WOOD, PAINT.
(c) FURNITURES: CHAIRS, TABLES, SOFA, TELEVISION,
PAINTINGS, CABINETS, STAND LAMPS, DRAWERS, MEDICAL FACILITIES, PLANTS AND MORE.
(d) TOLIET: WHITE COLOR PAINT ON WALL, HAVE ONE BIGGER
SPACE FOR PATIENT WHO USE WHEELCHAIR.
AREAS: ROOMS,
REGISTRATION, TOILET, WAITING AREA, DOCTOR’S OFFICE, STORAGE, EMERGENCY ROOM
AND CHILDREN ROOM.
FINAL ASSIGNMENT
1) INTRODUCTION BOARD
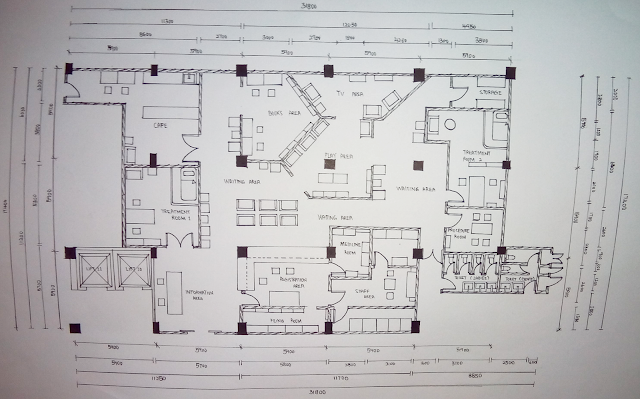
2)EXISTING LAYOUT PLAN
3)LAYOUT PLAN
4)VIEW
(a)
(b)
(c)
(d)
(e)
(f)
6)MODELING BOARD
![]() |
| FRONT VIEW |
![]() |
| SIDE VIEW |
![]() |
| BACK VIEW |
![]() |
| SIDE VIEW |
![]() |
| TOP VIEW |




















No comments:
Post a Comment